Quadrilocale in vendita

Villasanta, Via Andrea Doria
€ 570.000
4 locali 4 locali
166 Mq 166 Mq
2 bagni 2 bagni

Quadrilocale in vendita

Villasanta, Via Andrea Doria

Descrizione annuncio

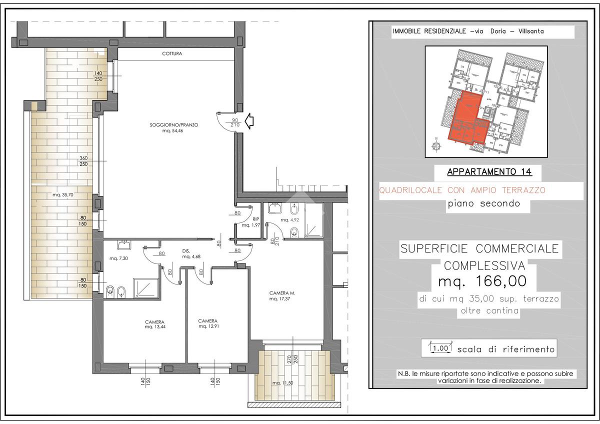
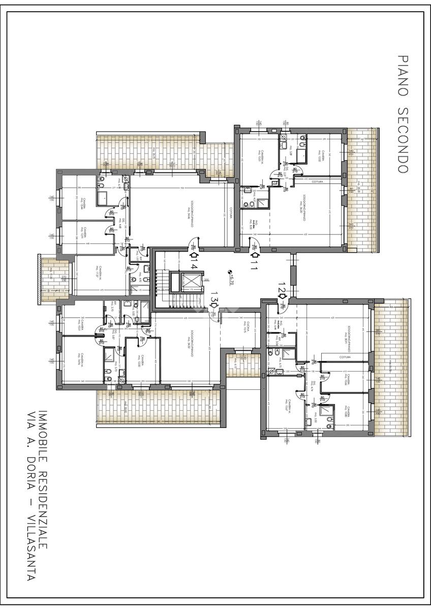
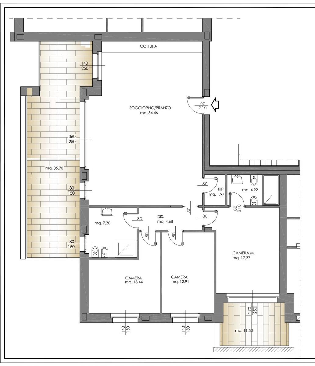
NUOVA REALIZZAZIONE – SANT’ALESSANDRO

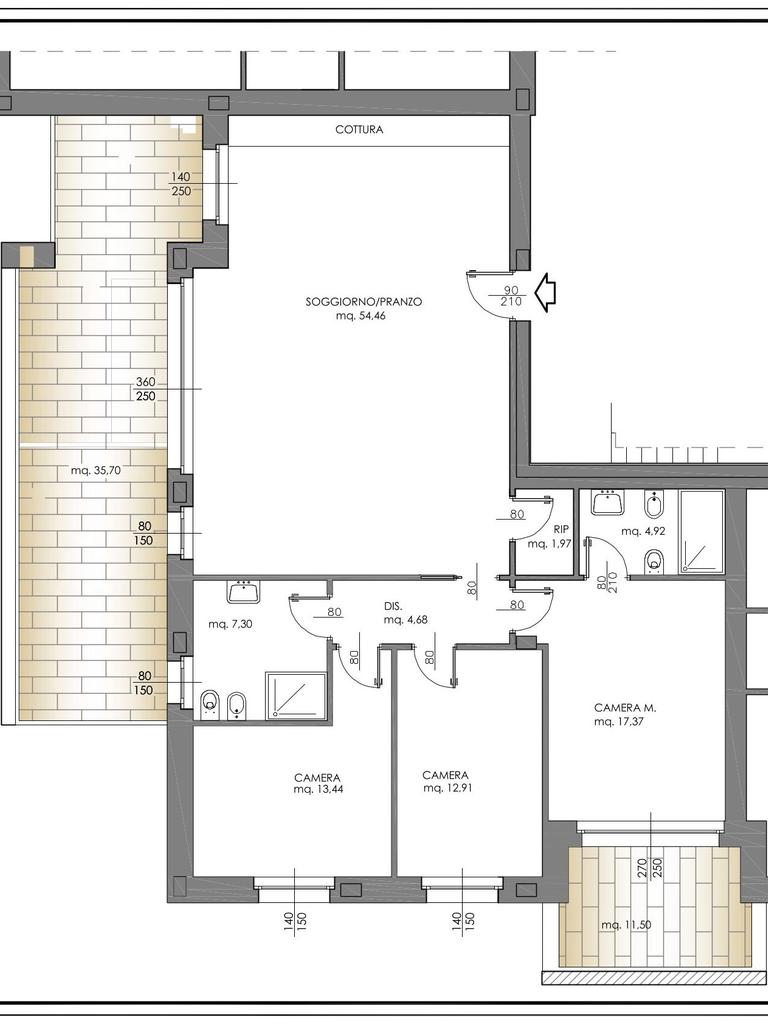
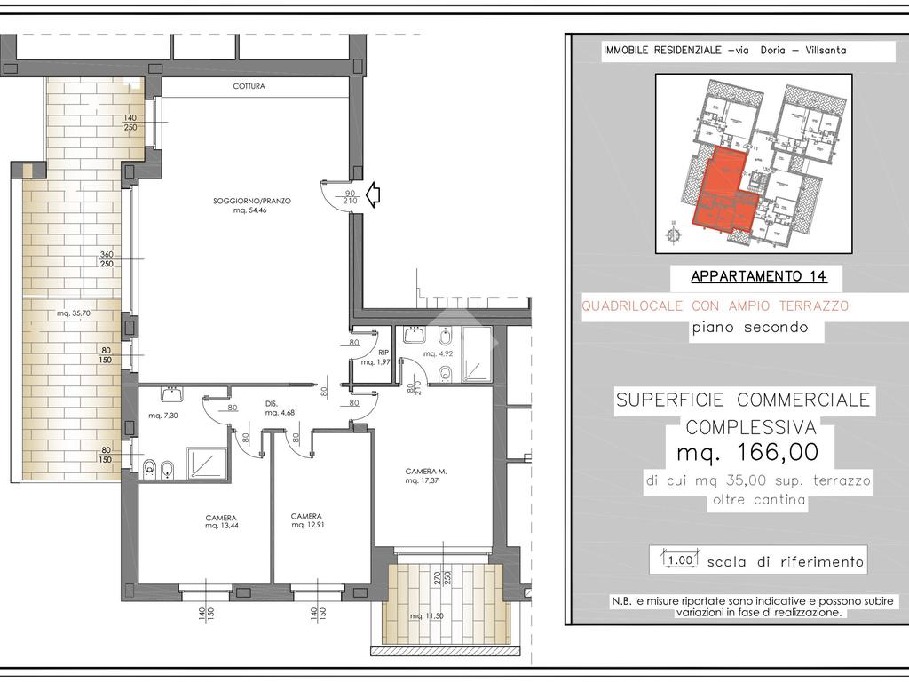
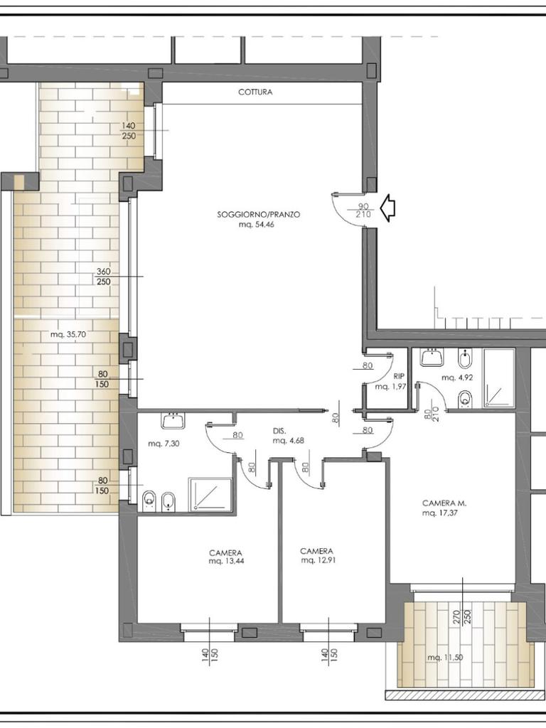
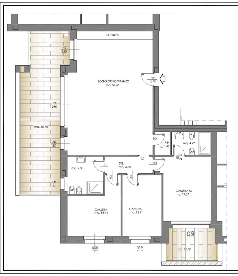
In elegante palazzina di prossima costruzione composta da circa 15 unità abitative, situata nella ricercata zona di Sant’Alessandro, comoda con tutti i principali servizi e a due passi dal centro città, proponiamo in vendita prestigioso appartamento quadrilocale al secondo piano.

La soluzione, di 166 mq commerciali (140 mq calpestabili), è composta da ingresso su ampia e luminosa zona living con accesso al terrazzo di 35 mq, cucina a vista, ripostiglio, due camere doppie, una camera matrimoniale con bagno privato en suite e un secondo bagno di servizio.

La costruzione partirà entro la fine dell’anno e sarà realizzata secondo le più moderne tecnologie in ambito edilizio, con particolare attenzione all’efficienza energetica e al comfort abitativo. L’edificio sarà certificato in classe energetica A3/A4, con impianti di ultima generazione, isolamenti termo-acustici avanzati, riscaldamento a pavimento, ventilazione meccanica controllata, serramenti ad alte prestazioni.

Ogni dettaglio dell’appartamento potrà essere personalizzato, permettendoti di scegliere le finiture che meglio rispecchiano il tuo stile e le tue esigenze.

L’immobile è progettato per garantire un elevato risparmio energetico, con impianti innovativi che rispettano i più alti standard di sostenibilità ambientale.

Disponibilità di box doppi, box singoli e cantine.

Soluzione ideale per chi desidera vivere in una zona tranquilla e signorile senza rinunciare alla comodità del centro.

Ogni agenzia ha un proprio titolare ed è autonoma – Le presenti informazioni non costituiscono elemento contrattuale.
Canale Youtube: Tecnocasa di Villasanta – Pagina Instagram: notaroabitaresrl – Pagina Facebook: Agenzia Tecnocasa Di Villasanta

Mostra tutto

Nelle vicinanze

Trasporto pubblico Trasporto pubblico
Villasanta
Villasanta
1,1 Km
Arcore
Arcore
1,6 Km
Trasporto pubblico
210 m
Villasanta Via Volta
Villasanta Via Volta
590 m
stazione di Buttafava
stazione di Buttafava
1,3 Km
Ricariche auto elettriche Ricariche auto elettriche
Piazza Europa
670 m
Hotel Ristorante la Bergamina
1,5 Km
Eneldrive Esselunga Monza
2,2 Km
ALDI Concorezzo
2,8 Km
Iper Monza
2,9 Km
Scuole Scuole
Scuola Primaria Andrea Oggioni
700 m
Scuola Primaria Villa
1,0 Km
Scuola Secondaria di Primo Grado Enrico Fermi
1,0 Km
Scuola Elementare Statale "Giovanni XXIII"
1,3 Km
Scuole
1,4 Km
Farmacia Farmacia
Farmacia Centrale
950 m
Farmacia La Ca'
2,2 Km
Farmacia Gilera
2,5 Km
Parafarmacia Gamma Salute
2,5 Km
Farmacia Comunale n. 3
2,7 Km
Ospedali Ospedali
Centro Medico
2,3 Km
Supermercati Supermercati
Il Gigante
790 m
Coop
920 m
Esselunga di Viale Libertà
2,2 Km
Iper Express
2,8 Km
Aldi
2,9 Km
Negozi Negozi
Carrera
720 m
OVS
770 m
Le Tatin
870 m
Gala Intimo
920 m
Casa della Maglia
1,0 Km
Bar Bar
Banco Rosso di Melissa
570 m
Wine Bar Morry
880 m
Bar
1,2 Km
Stelmoka
1,2 Km
Nuova Bohemia Soul Bar
1,7 Km
Ristoranti Ristoranti
Sale e pepe
310 m
Mexicali
370 m
Pizzeria da Vinci
570 m
Lychees
720 m
Il Vecchio Cotonificio
830 m
Mostra tutto

Caratteristiche

Rif.:
61078357
Piano:
2 di 3 con ascensore (ultimo Piano)
Balconi:
1
Terrazzi:
1
Camere da letto:
3
Arredamento:
Assente
Mostra tutto
Prezzo Prezzo
€ 570.000
Rata mutuo Rata mutuo
€ 2.611 / mese
Proponi il tuo prezzoProponi il tuo prezzo

Classe Energetica

A4
A4
A4
A4
A4
A4
A4
A4
A4
EP invernale del fabbricato:
EP estiva del fabbricato:
Anno di costruzione:
2025
Riscaldamento:
Autonomo
Tipo impianto:
A pavimento
Tipo alimentazione:
Metano

Ti interessa visionare l'immobile?

Fissa un appuntamento  Fissa un appuntamento

Richiedi informazioni

* Questi campi sono obbligatori

Calcola il tuo mutuo

Semplice e senza impegno
Anticipo

( % )
Mutuo

( % )

pochi semplici passi

inserisci i tuoi dati
Questionario completato
Grazie per aver richiesto un appuntamento senza impegno con un nostro Consulente del Credito e Assicurativo.

Hai inserito correttamente tutti i dati necessari e a breve riceverai una e-mail con un link da convalidare per inviare i tuoi dati.
Affiliato
Notaro Abitare Srl
Via Mazzini, 34 20852 Villasanta (MB)

Il nostro staff


  • Basilio Armando Notaro
    Affiliato

  • Eleonora De Pedrazzi
    Coordinatrice

  • Alessandro Giagnorio
    Collaboratore

  • Giorgia Marinelli
    Collaboratrice

  • Mirko Spinelli
    Collaboratore
Via Mazzini, 34 20852 Villasanta (MB)
Zona: Villasanta
Mostra su mappa
Orari: lunedì-venerdì 09:00-12:30/14:30-19:30; sabato 09:00-12:30
Affiliato
Notaro Abitare Srl
Via Mazzini, 34 20852 Villasanta (MB)

2025 Tecnocasa Franchising S.p.A. - P. IVA 08365160152 - Via Monte Bianco 60/A 20089 Rozzano (MI). Ogni agenzia ha un proprio titolare ed è autonoma. Privacy policy | Policy utilizzo | Cookie policy