Quadrilocale in vendita

Villasanta, Via Andrea Doria
€ 480.000
4 locali 4 locali
139 Mq 139 Mq
2 bagni 2 bagni

Quadrilocale in vendita

Villasanta, Via Andrea Doria

Descrizione annuncio

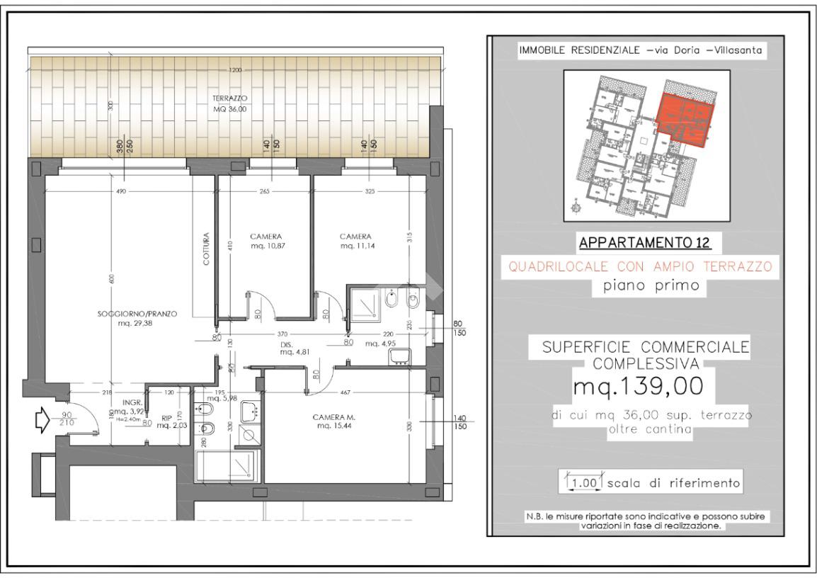
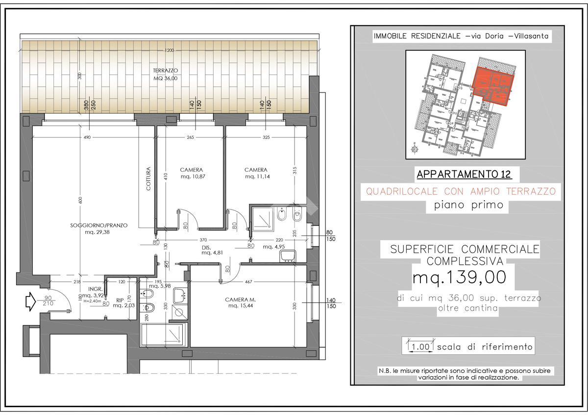
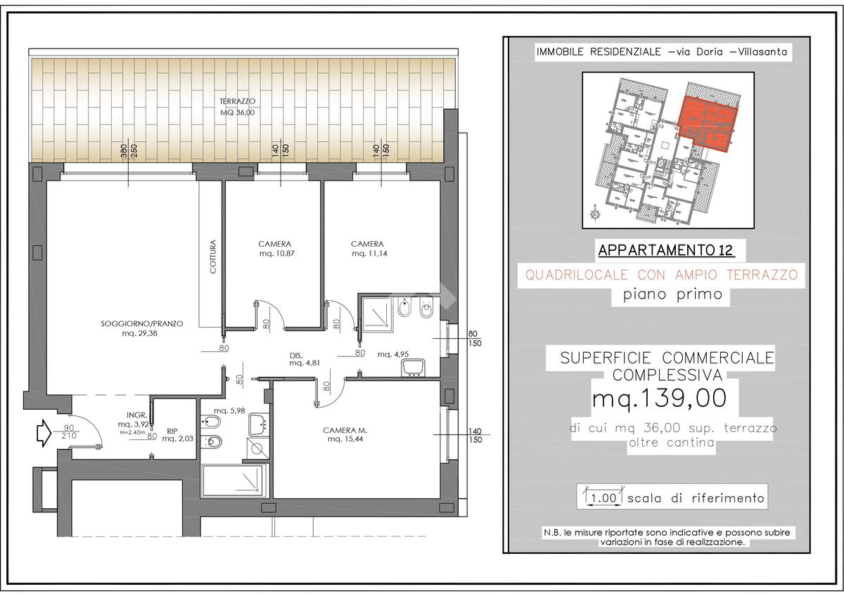
NUOVA REALIZZAZIONE SANT’ALESSANDRO

In elegante palazzina di prossima costruzione composta da circa 15 unità abitative, situata nella ricercata zona di Sant’Alessandro, comoda con tutti i principali servizi e a due passi dal centro città, proponiamo in vendita prestigioso appartamento quadrilocale al secondo piano.

La soluzione, di 139 mq commerciali (114 mq calpestabili), è composta da ingresso sulla luminosa zona living con pratico ripostiglio, disimpegno, bagno di servizio, camera singola, camera doppia, camera matrimoniale e bagno finestrato.
Completano la proprietà un ampio terrazzo di 36 mq, ideale per momenti di relax e convivialità.
L’appartamento gode di doppia esposizione Nord ed Est, che assicura un’ottimale luminosità e una piacevole ventilazione naturale.

La costruzione partirà entro la fine dell’anno e sarà realizzata secondo le più moderne tecnologie in ambito edilizio, con particolare attenzione all’efficienza energetica e al comfort abitativo. L’edificio sarà certificato in classe energetica A3/A4, con impianti di ultima generazione, isolamenti termo-acustici avanzati, riscaldamento a pavimento, ventilazione meccanica controllata, serramenti ad alte prestazioni.

Ogni dettaglio dell’appartamento potrà essere personalizzato, scegliendo finiture che rispecchiano il tuo stile e le tue esigenze.

Possibilità di scelta tra Box Doppio, Box Singolo e Cantina.

Soluzione ideale per chi desidera vivere in una zona tranquilla e signorile, senza rinunciare alla comodità del centro.

Ogni agenzia ha un proprio titolare ed è autonoma - Le presenti informazioni non costituiscono elemento contrattuale.
Canale Youtube: Tecnocasa di Villasanta – Pagina Instagram: notaroabitaresrl – Pagina Facebook: Agenzia Tecnocasa Di Villasanta.

Mostra tutto

Nelle vicinanze

Trasporto pubblico Trasporto pubblico
Villasanta
Villasanta
1,1 Km
Arcore
Arcore
1,6 Km
Trasporto pubblico
210 m
Villasanta Via Volta
Villasanta Via Volta
590 m
stazione di Buttafava
stazione di Buttafava
1,3 Km
Ricariche auto elettriche Ricariche auto elettriche
Piazza Europa
670 m
Hotel Ristorante la Bergamina
1,5 Km
Eneldrive Esselunga Monza
2,2 Km
ALDI Concorezzo
2,8 Km
Iper Monza
2,9 Km
Scuole Scuole
Scuola Primaria Andrea Oggioni
700 m
Scuola Primaria Villa
1,0 Km
Scuola Secondaria di Primo Grado Enrico Fermi
1,0 Km
Scuola Elementare Statale "Giovanni XXIII"
1,3 Km
Scuole
1,4 Km
Farmacia Farmacia
Farmacia Centrale
950 m
Farmacia La Ca'
2,2 Km
Farmacia Gilera
2,5 Km
Parafarmacia Gamma Salute
2,5 Km
Farmacia Comunale n. 3
2,7 Km
Ospedali Ospedali
Centro Medico
2,3 Km
Supermercati Supermercati
Il Gigante
790 m
Coop
920 m
Esselunga di Viale Libertà
2,2 Km
Iper Express
2,8 Km
Aldi
2,9 Km
Negozi Negozi
Carrera
720 m
OVS
770 m
Le Tatin
870 m
Gala Intimo
920 m
Casa della Maglia
1,0 Km
Bar Bar
Banco Rosso di Melissa
570 m
Wine Bar Morry
880 m
Bar
1,2 Km
Stelmoka
1,2 Km
Nuova Bohemia Soul Bar
1,7 Km
Ristoranti Ristoranti
Sale e pepe
310 m
Mexicali
370 m
Pizzeria da Vinci
570 m
Lychees
720 m
Il Vecchio Cotonificio
830 m
Mostra tutto

Caratteristiche

Rif.:
61142131
Piano:
2 di 3 con ascensore (Piano medio)
Terrazzi:
1
Camere da letto:
3
Condizionamento:
Autonomo
Ascensore:
Mostra tutto
Prezzo Prezzo
€ 480.000
Rata mutuo Rata mutuo
€ 2.263 / mese
Proponi il tuo prezzoProponi il tuo prezzo

Classe Energetica

A4
A4
A4
A4
A4
A4
A4
A4
A4
EP invernale del fabbricato:
EP estiva del fabbricato:
Anno di costruzione:
2025
Riscaldamento:
Autonomo
Tipo impianto:
A pavimento
Tipo alimentazione:
Metano

Ti interessa visionare l'immobile?

Fissa un appuntamento  Fissa un appuntamento

Richiedi informazioni

Clicca su Leggi per aprire l'informativa
* Questi campi sono obbligatori

Calcola il tuo mutuo

Semplice e senza impegno
Anticipo

( % )
Mutuo

( % )

pochi semplici passi

inserisci i tuoi dati
Questionario completato
Grazie per aver richiesto un appuntamento senza impegno con un nostro Consulente del Credito e Assicurativo.

Hai inserito correttamente tutti i dati necessari e a breve riceverai una e-mail con un link da convalidare per inviare i tuoi dati.
Affiliato
Notaro Abitare Srl
Via Mazzini, 34 20852 Villasanta (MB)

Il nostro staff


  • Basilio Armando Notaro
    Affiliato

  • Eleonora De Pedrazzi
    Coordinatrice

  • Giorgia Marinelli
    Collaboratrice

  • Mirko Spinelli
    Collaboratore
Via Mazzini, 34 20852 Villasanta (MB)
Zona: Villasanta
Mostra su mappa
Orari: lunedì-venerdì 09:00-12:30/14:30-19:30; sabato 09:00-12:30
Affiliato
Notaro Abitare Srl
Via Mazzini, 34 20852 Villasanta (MB)

2025 Tecnocasa Franchising S.p.A. - P. IVA 08365160152 - Via Monte Bianco 60/A 20089 Rozzano (MI). Ogni agenzia ha un proprio titolare ed è autonoma. Privacy policy | Policy utilizzo | Cookie policy