Trilocale in vendita

Villasanta, Via Cesare Beccaria
€ 300.000
3 locali 3 locali
82 Mq 82 Mq
1 bagno 1 bagno

Trilocale in vendita

Villasanta, Via Cesare Beccaria

Descrizione annuncio

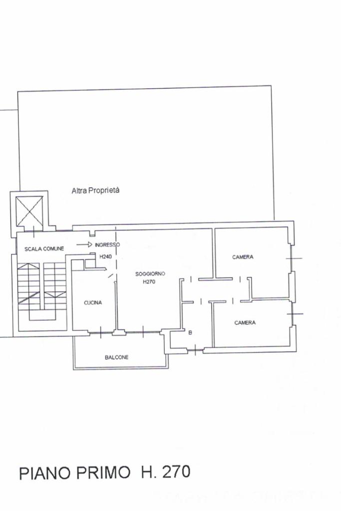
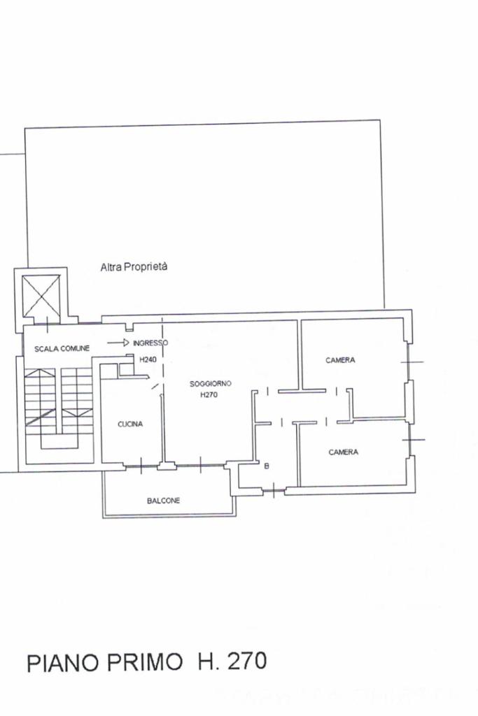
Appartamento trilocale con terrazzo a due passi dal Parco di Monza

In un contesto residenziale tranquillo, all'interno di un complesso ben tenuto costruito nel 1997, proponiamo in vendita un appartamento al primo piano, caratterizzato da ambienti ampi e ben distribuiti.

L'ingresso si apre sulla luminosa zona living, composta da un ampio soggiorno e da una cucina abitabile, entrambi con accesso diretto a un grande terrazzo coperto, perfetto per pranzi all'aperto e momenti di relax. La zona notte ospita una camera matrimoniale, una cameretta e un bagno finestrato con box doccia. È presente anche un comodo bagno di servizio.

La proprietà include una cantina di circa 9 mq e un box singolo di 13 mq. L'appartamento, in ottime condizioni, è dotato di impianto antifurto con videosorveglianza, inferriate, zanzariere, filodiffusione, aria condizionata con split e impianto di irrigazione automatica nell'area esterna.

La posizione è ideale per chi cerca tranquillità e comodità: l'abitazione si trova a pochi passi dal Parco di Monza e dalla ciclopedonale, che consente di raggiungere facilmente il centro città.

Ogni agenzia ha un proprio titolare ed e' autonoma - Le presenti informazioni non costituiscono elemento contrattuale.
Canale Youtube: Tecnocasa di Villasanta - Pagina Instagram: notaroabitaresrl - Pagina Facebook: Agenzia Tecnocasa Di Villasanta

Mostra tutto

Nelle vicinanze

Trasporto pubblico Trasporto pubblico
Villasanta
Villasanta
1,3 Km
Arcore
Arcore
1,9 Km
Trasporto pubblico
590 m
Villasanta Via Volta
Villasanta Via Volta
920 m
stazione di Buttafava
stazione di Buttafava
730 m
Ricariche auto elettriche Ricariche auto elettriche
Piazza Europa
870 m
Hotel Ristorante la Bergamina
2,2 Km
Eneldrive Esselunga Monza
2,6 Km
Sporting Club Monza
3,0 Km
Scuole Scuole
Scuola Primaria Andrea Oggioni
800 m
Scuola Primaria Villa
1,0 Km
Scuola Secondaria di Primo Grado Enrico Fermi
1,2 Km
Scuola Elementare Statale "Giovanni XXIII"
1,3 Km
Scuole
1,4 Km
Farmacia Farmacia
Farmacia Centrale
1,0 Km
Farmacia La Ca'
1,9 Km
Farmacia
2,5 Km
Parafarmacia Gamma Salute
2,5 Km
Farmacia Ariani
2,7 Km
Ospedali Ospedali
Centro Medico
1,6 Km
Supermercati Supermercati
Il Gigante
650 m
Coop
1,0 Km
NaturaSì
2,3 Km
Lidl
2,4 Km
Eurospin
2,4 Km
Negozi Negozi
OVS
600 m
Carrera
710 m
Gala Intimo
950 m
Casa della Maglia
1,1 Km
E. Colombo
1,1 Km
Bar Bar
Bar
490 m
Stelmoka
510 m
Banco Rosso di Melissa
700 m
Wine Bar Morry
1,1 Km
Nuova Bohemia Soul Bar
1,9 Km
Ristoranti Ristoranti
Sale e pepe
480 m
Mexicali
690 m
Pizzeria da Vinci
700 m
Osteria del Dosso
820 m
Il Vecchio Cotonificio
880 m
Mostra tutto

Caratteristiche

Rif.:
61164801
Piano:
1 di 3 con ascensore (Piano medio)
Box:
1
Terrazzi:
1
Camere da letto:
2
Arredamento:
Assente
Mostra tutto
Prezzo Prezzo
€ 300.000
Rata mutuo Rata mutuo
€ 1.414 / mese
Spese annue Spese annue
€ 1.500
Proponi il tuo prezzoProponi il tuo prezzo

Classe Energetica

G
G
G
G
G
G
G
G
G
EP invernale del fabbricato:
EP estiva del fabbricato:
Anno di costruzione:
1995
Riscaldamento:
Autonomo
Tipo impianto:
A radiatori
Tipo alimentazione:
Metano

Ti interessa visionare l'immobile?

Fissa un appuntamento  Fissa un appuntamento

Richiedi informazioni

Clicca su Leggi per aprire l'informativa
* Questi campi sono obbligatori

Calcola il tuo mutuo

Semplice e senza impegno
Anticipo

( % )
Mutuo

( % )

pochi semplici passi

inserisci i tuoi dati
Questionario completato
Grazie per aver richiesto un appuntamento senza impegno con un nostro Consulente del Credito e Assicurativo.

Hai inserito correttamente tutti i dati necessari e a breve riceverai una e-mail con un link da convalidare per inviare i tuoi dati.
Affiliato
Notaro Abitare Srl
Via Mazzini, 34 20852 Villasanta (MB)

Il nostro staff


  • Basilio Armando Notaro
    Affiliato

  • Eleonora De Pedrazzi
    Coordinatrice

  • Giorgia Marinelli
    Collaboratrice

  • Mirko Spinelli
    Collaboratore
Via Mazzini, 34 20852 Villasanta (MB)
Zona: Villasanta
Mostra su mappa
Orari: lunedì-venerdì 09:00-12:30/14:30-19:30; sabato 09:00-12:30
Affiliato
Notaro Abitare Srl
Via Mazzini, 34 20852 Villasanta (MB)

2026 Tecnocasa Franchising S.p.A. - P. IVA 08365160152 - Via Monte Bianco 60/A 20089 Rozzano (MI). Ogni agenzia ha un proprio titolare ed è autonoma. Privacy policy | Policy utilizzo | Cookie policy